THE BWS 59
Baustart 02/2026
Ein Zuhause mit Charakter.

Das Projekt
_____
18 Eigentumswohnungen
2–3 Zimmer mit durchdachten Grundrissen
KfW-40 Standard
Nachhaltige Bauweise mit hoher Energieeffizienz
Barrierefrei & Aufzug
Komfortabel und generationenübergreifend nutzbar
Baubeginn: 02/2026
Fertigstellung: Sommer 2027
Mit „THE BWS 59“ entsteht in Bergheim-Glessen ein hochwertiges Wohnprojekt mit insgesamt 18 Eigentumswohnungen.
Die Wohnungen umfassen 2- bis 3-Zimmer-Grundrisse und bieten durchdachte Raumkonzepte für unterschiedliche Lebenssituationen.
Das Gebäude wird barrierefrei ausgeführt und über einen Aufzug erschlossen, sodass eine komfortable und generationenübergreifende Nutzung gewährleistet ist.
Die klare architektonische Gestaltung, funktionale Grundrisse und eine nachhaltige Bauweise stehen im Mittelpunkt der Entwicklung und Umsetzung.
Energieeffizienz & Qualität
_____
Das Projekt wird im nachhaltigen KfW-40-Standard realisiert und erfüllt damit hohe Anforderungen an Energieeffizienz und langfristige Wertstabilität.
Während der Bauphase werden Qualität, Terminverlässlichkeit und eine strukturierte Projektsteuerung konsequent begleitet.
Status
_____
Sichern Sie sich jetzt Ihre neue Wohnung in unserem Projekt. Die Grundrisse finden Sie untenstehend.



Lage & Umfeld
_____
Die Brauweiler Straße liegt nur rund 5 Kilometer Luftlinie von Köln entfernt und dennoch eingebettet in naturnaher Umgebung.
Bergheim-Glessen bietet:
- Schulen und Kindertageseinrichtungen
- vielfältige Freizeitmöglichkeiten (Golf, Tennis, Reiterhöfe)
- direkte Lage am Wald
- fußläufig erreichbare Geschäfte des täglichen Bedarfs
Die sehr gute Busanbindung sowie die schnelle Erreichbarkeit der Autobahnen A1, A3, A4, A57 und A61 ermöglichen eine komfortable Verbindung nach Köln und in die umliegenden Städte.


Alle Wohnungen im Detail
_____
WE 1 - 2 Zimmer Wohnung
Erdgeschoss
_____
1) Wohnen/Essen 29,28 m²
2) Schlafzimmer 14,62 m²
3) Bad 5,44 m²
4) Abstellraum 2,66 m²
5) Flur 6,50 m²
6) Terrasse (50% berechnet) 4,12 m²
Wohnfläche Gesamt: 62,61 m²

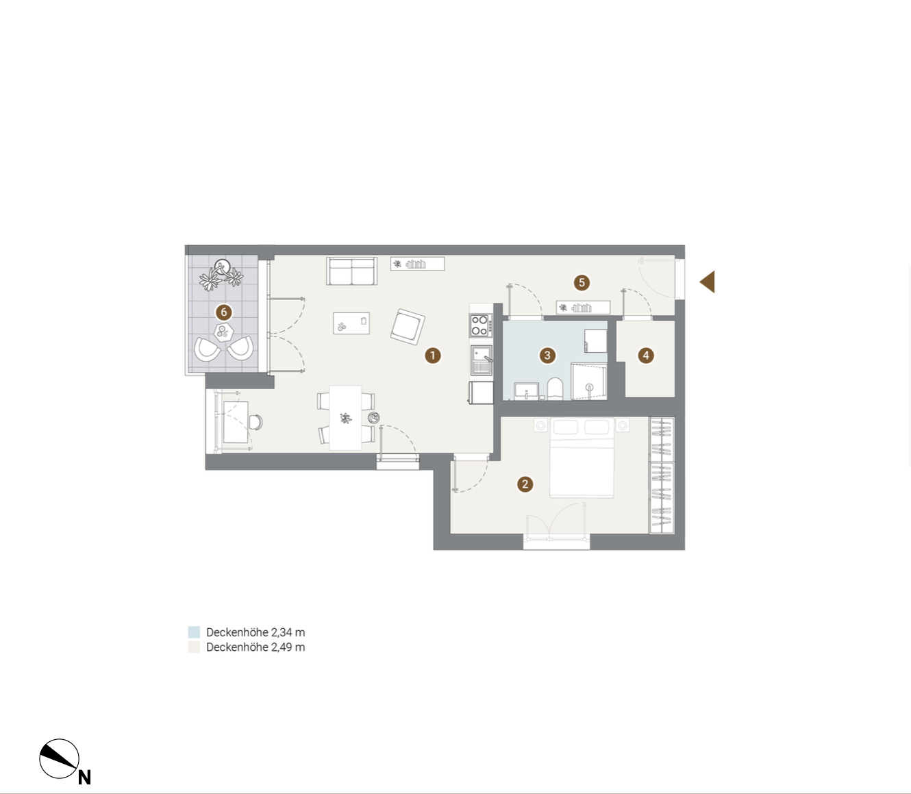
WE 2 - 2 Zimmer Wohnung
Erdgeschoss
_____
1) Wohnen/Essen 36,38 m²
2) Schlafzimmer 14,98 m²
3) Bad 5,28 m²
4) Abstellraum 2,05 m²
5) Flur 9,30 m²
6) Terrasse (50% berechnet) 4,14 m²
Wohnfläche Gesamt: 72,13 m²

WE 3 - 3 Zimmer Wohnung
1. Obergeschoss
_____
1) Wohnen/Essen 26,57 m²
2) Eltern 12,53 m²
3) Kinderzimmer 10,87 m²
4) Bad 4,83 m²
5) Abstellraum 2,10 m²
6) Flur 10,18 m²
7) Loggia 3,16 m²
Wohnfläche Gesamt: 70,25 m²
Ein Alternativgrundriss mit Gäste-WC ist aktuell noch wählbar.

WE 4 - 2 Zimmer Wohnung
1. Obergeschoss
_____
1) Wohnen/Essen 28,27 m²
2) Schlafzimmer 12,52 m²
3) Bad 5,02 m²
4) Abstellraum 3,63 m²
5) Loggia (50% berechnet) 3,04 m²
Wohnfläche Gesamt: 52,49 m²

WE 5 - 2 Zimmer Wohnung
1. Obergeschoss
_____
1) Wohnen/Essen 28,66 m²
2) Schlafzimmer 12,52 m²
3) Bad 5,33 m²
4) Abstellraum 3,25 m²
5) Loggia (50% berechnet) 2,87 m²
Wohnfläche Gesamt: 52,63 m²

WE 6 - 2 Zimmer Wohnung
1. Obergeschoss
_____
1) Wohnen/Essen 29,28 m²
2) Schlafzimmer 14,62 m²
3) Bad 5,44 m²
4) Abstellraum 2,66 m²
5) Flur 6,50 m²
6) Loggia(50% berechnet) 2,80 m²
Wohnfläche Gesamt: 61,30 m²

WE 7 - 2 Zimmer Wohnung
1. Obergeschoss
_____
1) Wohnen/Essen 36,38 m²
2) Schlafzimmer 14,88 m²
3) Bad 5,23 m²
4) Abstellraum 2,05 m²
5) Flur 9,30 m²
6) Loggia (50% berechnet) 2,79 m²
Wohnfläche Gesamt: 70,63 m²

WE 8 - 3 Zimmer Wohnung
2. Obergeschoss
_____
1) Wohnen/Essen 26,58 m²
2) Eltern 12,53 m²
3) Kinderzimmer 10,87 m²
4) Bad 4,83 m²
5) Abstellraum 2,15 m²
6) Flur 10,18 m²
7) Loggia 3,16 m²
Wohnfläche Gesamt: 70,31 m²
Ein Alternativgrundriss mit Gäste-WC ist aktuell noch wählbar.

WE 9 - 2 Zimmer Wohnung
2. Obergeschoss
_____
1) Wohnen/Essen 28,45 m²
2) Schlafzimmer 12,83 m²
3) Bad 5,02 m²
4) Abstellraum 3,63 m²
5) Loggia (50% berechnet) 3,04 m²
Wohnfläche Gesamt: 52,97 m²

WE 10 - 2 Zimmer Wohnung
2. Obergeschoss
_____
1) Wohnen/Essen 28,68 m²
2) Schlafzimmer 12,84 m²
3) Bad 5,33 m²
4) Abstellraum 3,25 m²
5) Loggia (50% berechnet) 2,88 m²
Wohnfläche Gesamt: 52,98 m²

WE 11 - 2 Zimmer Wohnung
2. Obergeschoss
_____
1) Wohnen/Essen 35,78 m²
2) Schlafzimmer 14,63 m²
3) Bad 5,44 m²
4) Abstellraum 2,66 m²
5) Balkon (50% berechnet) 5,55 m²
Wohnfläche Gesamt: 64,07 m²

WE 12 - 2 Zimmer Wohnung
2. Obergeschoss
_____
1) Wohnen/Essen 22,42 m²
2) Schlafzimmer 11,88 m²
3) Bad 4,64 m²
4) Abstellraum 3,48 m²
5) Dachterrasse (50% berechnet) 12,45 m²
Wohnfläche Gesamt: 54,87 m²

WE 13 - 3 Zimmer Wohnung
3. Obergeschoss
_____
1) Wohnen/Essen 35,01 m²
2) Schlafzimmer 13,91 m²
3) Kinderzimmer 11,99 m²
4) Bad 4,95 m²
5) Abstellraum 2,69 m²
6) Flur 8,34 m²
7) Dachterrasse (50% berechnet) 18,66 m²
Wohnfläche Gesamt: 95,56 m²
Ein Alternativgrundriss mit Gäste-WC ist aktuell noch wählbar.

WE 14 - 3 Zimmer Wohnung
3. Obergeschoss
_____
1) Wohnen/Essen 28,80 m²
2) Schlafzimmer 16,92 m²
3) Kinderzimmer 9,37 m²
4) Bad 5,33 m²
5) Abstellraum 2,77 m²
6) Flur 3,90 m²
7) Loggia (50% berechnet) 5,62 m²
Wohnfläche Gesamt: 72,71 m²
Ein Alternativgrundriss mit Gäste-WC ist aktuell noch wählbar.

WE 15 - 2 Zimmer Wohnung
3. Obergeschoss
_____
1) Wohnen/Essen 35,91 m²
2) Schlafzimmer 14,63 m²
3) Bad 5,44 m²
4) Abstellraum 2,66 m²
5) Flur
6) Balkon (50% berechnet) 5,64 m²
Wohnfläche Gesamt: 64,28 m²

WE 16 - 2 Zimmer Wohnung
3. Obergeschoss
_____
1) Wohnen/Essen 22,42 m²
2) Schlafzimmer 11,68 m²
3) Bad 4,64 m²
4) Abstellraum 3,48 m²
5) Balkon (50% berechnet) 2,76 m²
Wohnfläche Gesamt: 44,98 m²

WE 17 - 3 Zimmer Wohnung
4. Obergeschoss
_____
1) Wohnen/Essen 35,29 m²
2) Schlafzimmer 15,89 m²
3) Schlafzimmer 15,12 m²
4) Bad 7,43 m²
5) Gäste-WC 3,34 m²
6) Ankleide 4,40 m²
7) Abstellraum 2,00 m²
8) Flur 10,41 m²
9) Dachterrasse (50% berechnet) 21,40 m²
Wohnfläche Gesamt: 115,28 m²

WE 18 - 3 Zimmer Wohnung
4. Obergeschoss
_____
1) Wohnen/Essen 31,24 m²
2) Schlafzimmer 15,95 m²
3) Bad 4,66 m²
4) Abstellraum 2,91 m²
5) Flur 6,37m²
6) Dachterrasse (50% berechnet) 12,78 m²
Wohnfläche Gesamt: 73,91 m²
Ein Alternativgrundriss mit Gäste-WC ist aktuell noch wählbar.

Haftungsausschluss
Alle Flächenangaben sind als Circa-Maße zu verstehen. Alle Darstellungen inklusive Möblierung sind nur beispielhaft.
Die Platzierung Ihrer späteren Einbauküche kann in der Realität von der Abbildung abweichen.
Projektvideo – VR Crowd
_____
Weitere Projektinformationen erhalten Sie hier.

Sie haben Interesse an einer
unserer Wohnungen?
Kontaktieren Sie uns !
_____
Der Verkauf des Projekts erfolgt in Zusammenarbeit mit:
Plan 8 Immobilien
